

Application:
This machine can choose a variety of configurations to realize spreading, centering and combination functions. It is mainly suitable for surface raising of short plush and super soft velvet, also suitable for woven fabrics and knitting fabrics.
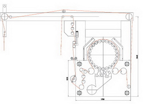
Feature:
Driven and controlled by touch screen, PLC and inverters. Easy to operate, variable speed and intelligent. Adopted 24 pieces of Φ81 raising rollers (without fillet). The machine is working more stable and suitable for stronger raising power.
Nominal width 200、250、280、320
Roller diameter 81mm
No. of raising roller 24
each 12 for pile roller and counter pile roller
Fabric speed 10-40 m/min (variable)
Drum speed 55-90 r/min (variable)
No. of continuous belt 4 pcs of C-type belt each side
Power(Not include dust exhaustor) 41.7kW
Opt. parts Pre-spreading, Centering device
Electrical control Touch screen+ PLC(Siemens)+multi inverters(Danfoss)
Overall dimensions Baisc:4690(W)×4110(L)×2860(H)
Q:4690(W)×2670(L)×2860(H)
H:4690(W)×3190(L)×2860(H) |